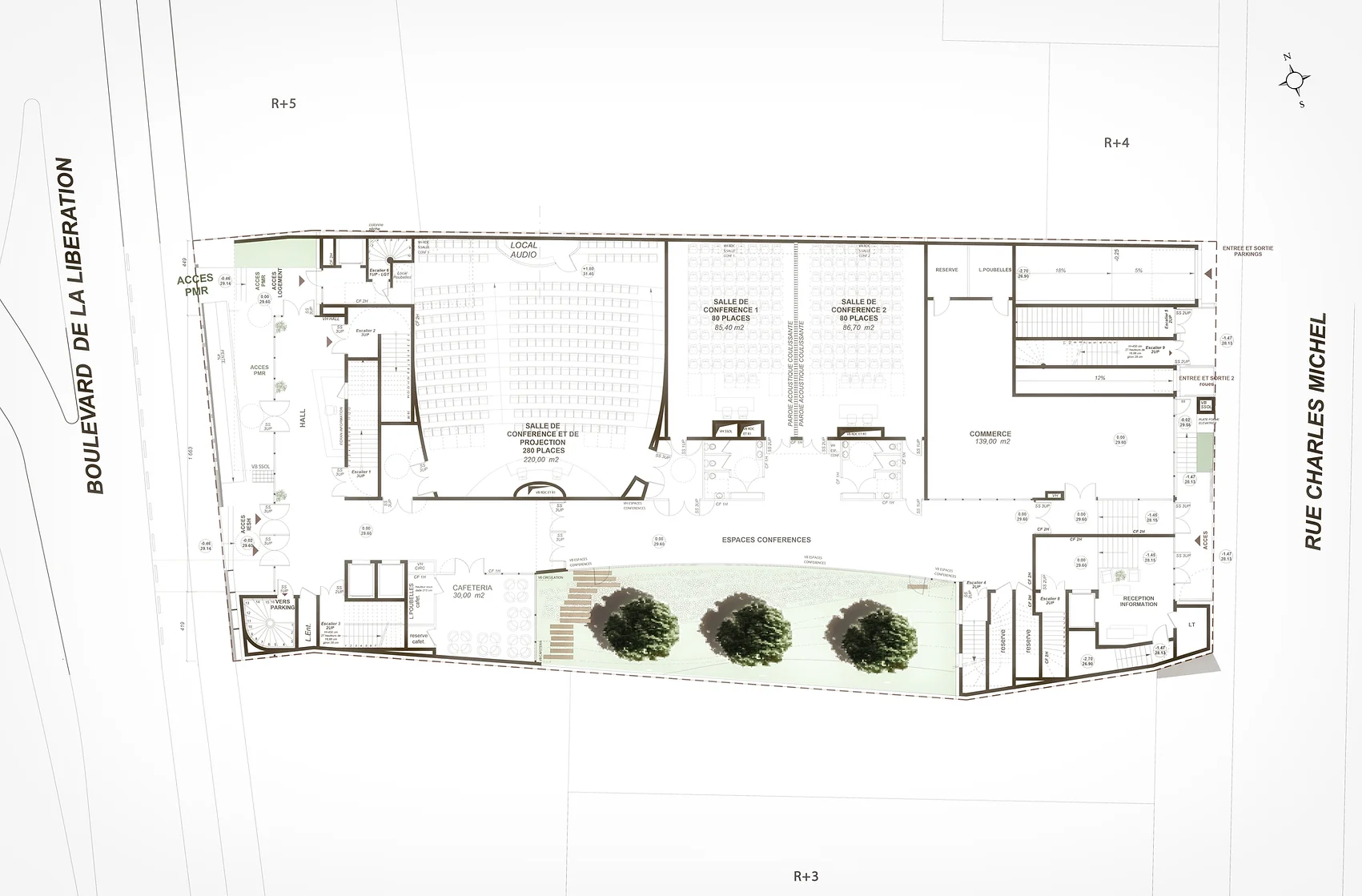
Ce projet, résolument inscrit dans une démarche de développement durable et de respect de l’environnement, propose un institut d’enseignement (dont des amphithéâtres et des salles polyvalentes). des bureaux et des logements de fonction, abrités par une architecture préservant l’intimité, et s’ouvrant sur un îlot central de verdure.
Ce projet traversant, entre le boulevard de la Libération et la rue Charles Michel, met l’accent sur l’esprit de quartier, assurant une transition de l’espace public vers l’espace privé par des interfaces progressives, et particulièrement une grande rue intérieure sur les deux premiers niveaux du bâtiment. Ce projet mêle architecture des bâtiments et architecture des jardins, à travers trois grandes références:
• La Basilique de Saint-Denis : nous avons intégré dans notre composition << l’arc d’ogives », travaillé comme un élément de façade constituant un langage architectural mêlant culture chrétienne et culture musulmane, et correspondant à un véritable trait d’union dans le paysage.
• L’architecture des jardins dans la civilisation musulmane : les espaces extérieurs de l’Institut sont traités en jardins, protégés en cœur d’îlot, et reflétant différentes ambiances, et permettant l’évasion.
• La Basilique de Saint-Denis nous avons intégré dans notre composition << l’arc d’ogives », travaillé comme un élément de façade constituant un langage architectural mêlant culture chrétienne et culture musulmane, et correspondant à un véritable trait d’union dans le paysage.
• L’architecture des jardins dans la civilisation musulmane: les espaces extérieurs de l’Institut sont traités en jardins, protégés en cœur d’îlot, et reflétant différentes ambiances, et permettant l’évasion.
• Le moucharabieh : les façades sont parées d’un habit blanc et sobre dont le motif de moucharabieh rappelle la culture enseignée à l’Institut.
L’habillage de façade en résille métallique, réinterprétant l’arc d’ogive, agit également comme un brise-soleil : les excès de lumière sont atténués, réduisant l’effet de serre en faveur des économies d’énergie.











