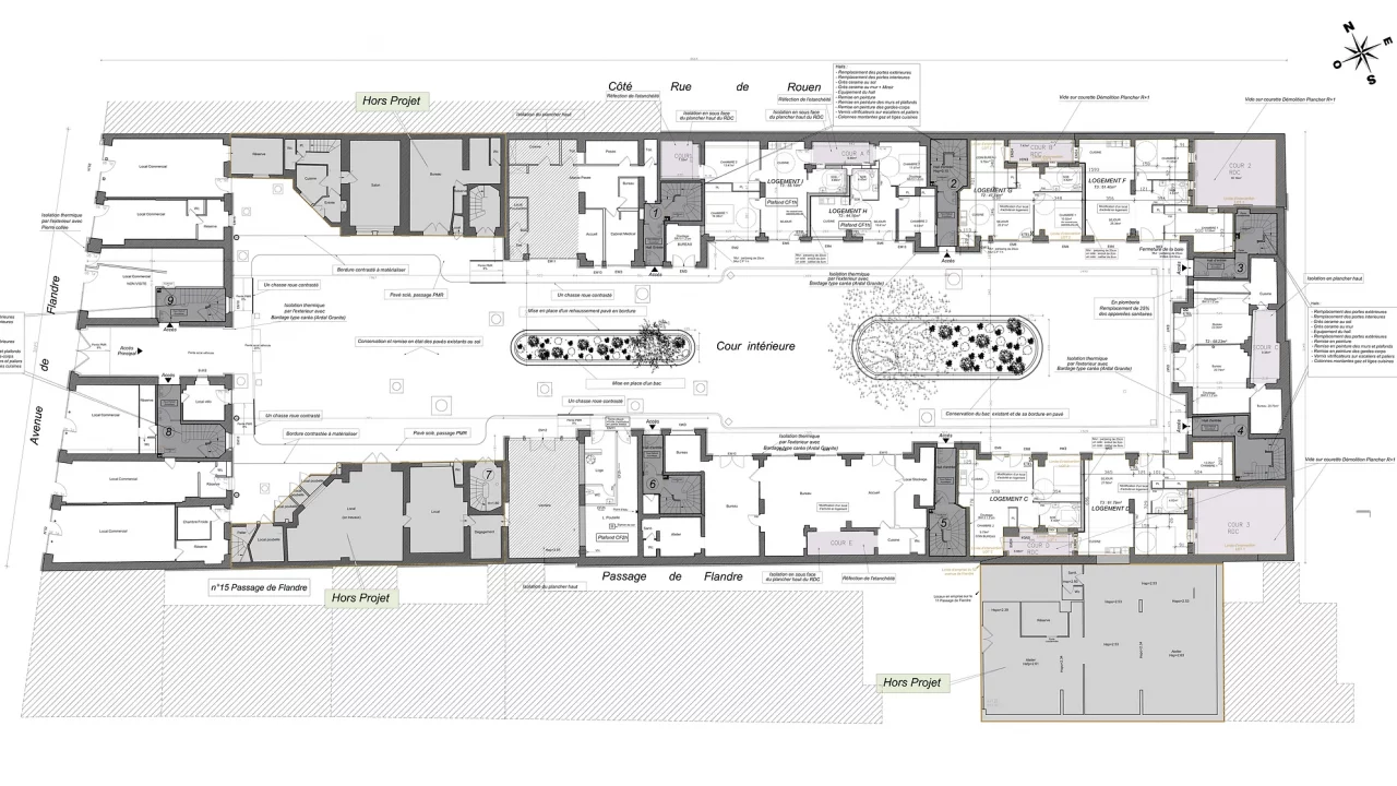
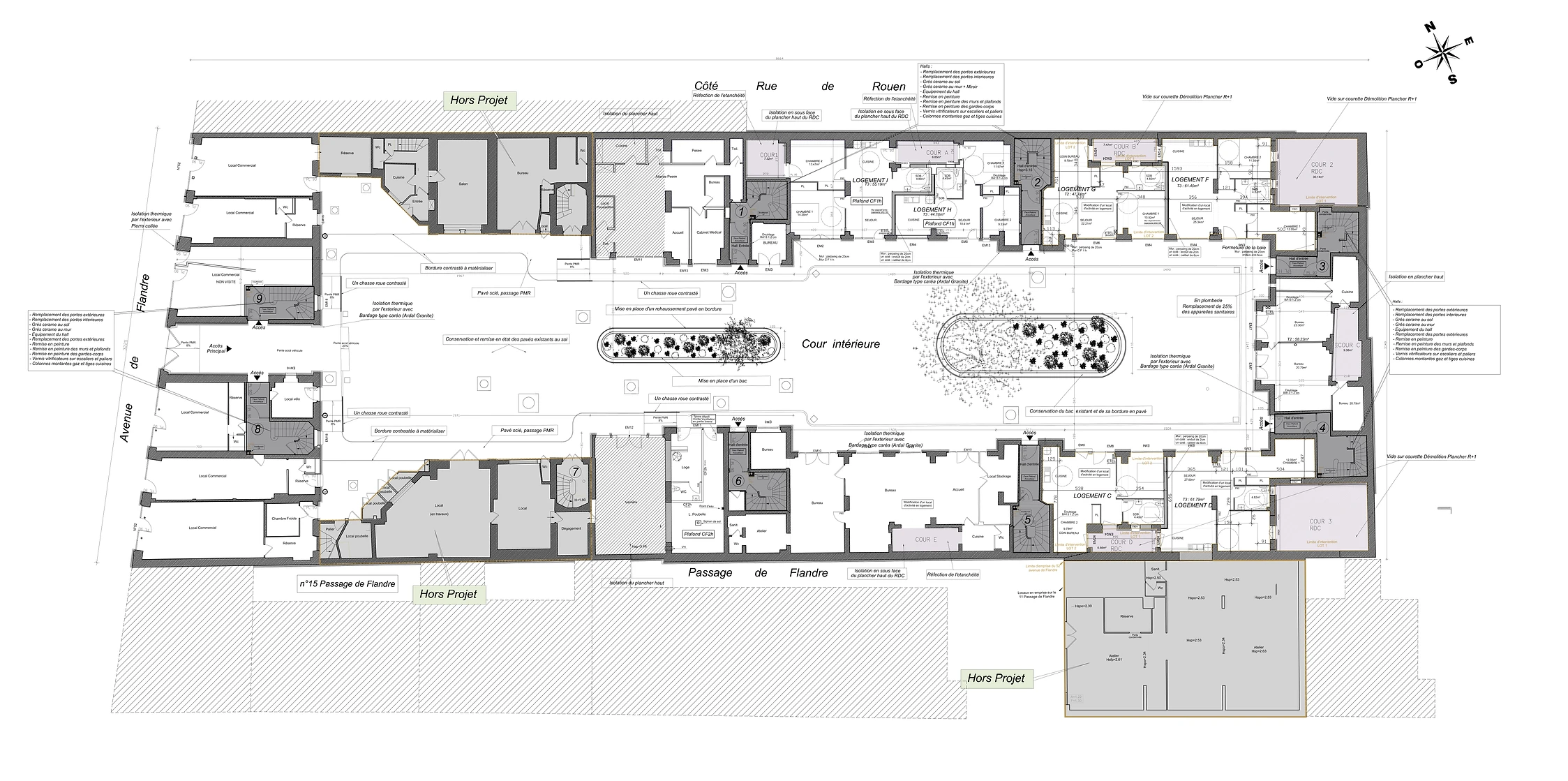
L’enjeu est de transformer une vielle battisse en un bâtiment respectueux des exigences techniques modernes.
En agissant sur son enveloppe tout en gardant sa forme originelle nous conjuguons la conservation des typologies urbaines et les exigences en faveurs du développement durable. Notre guide lors de cette étude sera d’intégrer les fonctionnalités, et les éléments techniques pour un usage optimum de cet ensemble immobilier, dans le respect de sa personnalité. Cette réhabilitation sera l’occasion de valoriser ce patrimoine et de redonner une cohérence esthétique et typologique à ce cadre bâti.
Toujours dans un souci de valorisation et d’apport de confort de vie, nous intégrerons à notre démarche une requalification de la cour en espace végétalisé. Ce qui réduira ainsi la pollution sonore du lieu et apportera une meilleure qualité d’aire à l’intérieur de l’îlot jardin et dans les logements.






